AZPML
  • Projects
    • Use
      • Civic
      • Culture
      • Education
      • Exhibition
      • Infrastructure
      • Landscape
      • Leisure
      • Masterplanning
      • Mixed Use
      • Office
      • Research
      • Residential
      • Retail
      • Sport
      • Transport
    • Size
      • <1.000m2
      • 1.000 – 5.000m2
      • 5.000 – 10.000m2
      • 10.000 – 50.000m2
      • >50.000m2
    • Location
      • Africa
      • Asia
      • Australia
      • Europe
      • North America
      • South America
  • About
    • Profile
    • Principals
    • Awards
    • Publications
  • Contacts

Client: INCASOL

Location: Reus, Spain

Date: 2025

Type: Residential + Healthcare

Area: 3153.41m2

Budget: Undisclosed

 

AZPML

Alejandro Zaera-Polo, Maider Llaguno-Munitxa, Ivaylo Nachev

 

Ros + Falguera:

Pablo Ros, Jaume Falguera, Daniela Atziri, Santiago Ramos, Elizaveta Veretilnaya

 

M&E & Sustainability:

j2L Engineering – Jose Luís Hernández

 

Structure:

Best Costales Jaén – Nacho Costales

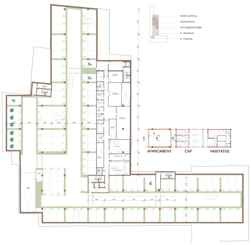
The proposal has been conceived as a sustainable building that is sensitively integrated into a peaceful street, surrounded by vegetation and in a space that recovers its public condition from the existing streets and disused areas.

On the first two floors, the Primary Care Center is deployed as an open, accessible and energy-efficient space, in constant dialogue with the green environment.

On this base, 22 apartments are organized on two floors solved with an industrialized construction system in wood, which reduces the carbon footprint, optimizes processes and guarantees a high level of comfort and sustainability.

The volume, in the shape of an L, is separated from the dividing wall to generate a courtyard full of light, air and life, a bright passage that favours natural ventilation and coexistence. The linear walkways and setback terraces open the homes to the street, creating a friendly and permeable architecture. In the basement, the 102-space car park replaces the old surface parking and becomes a green roof that reuses rainwater.

Overall, the building aspires to be a model of urban regeneration, environmental efficiency and high-quality living.

The structure of the project is based on a module of 8.35 meters of light, with great flexibility of use. This module supports the accommodation of:

– 3 parking spaces with regulatory measures (5×2.5m).

– 3 medical consultations of 16.5m2.

– 1 “L” type housing with 4 places.

This rational organization facilitates the optimization of the surface and the structural coherence of the entire building.

AZPML
LEGAL COPYRIGHT@ AZPML. all copy rights reserved